Prosjekt beskrivelse
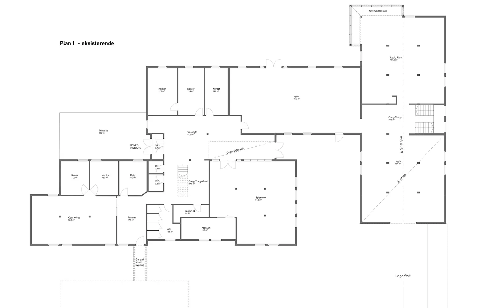
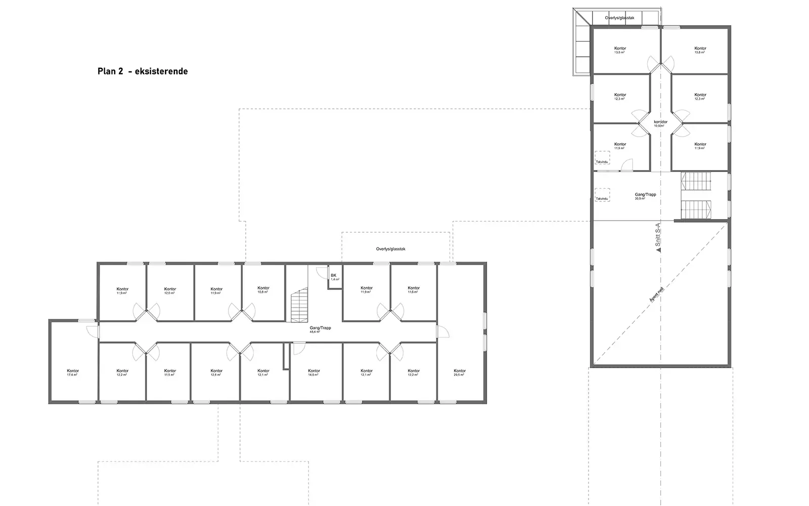
I Verpenveien 28 har vi omsøkt ombygging og bruksendring fra lager til kontor (2025). Prosjektet etablerer en ny og effektiv planløsning tilpasset kontorbruk, med tiltak som ivaretar universell utforming og tekniske krav. Fasadegrepene holdes bevisst minimale for å videreføre byggets eksisterende karakter og understøtte områdets regulerte formål.
Tiltak og kvaliteter
Ombyggingen omfatter nytt bjelkelag der det er nødvendig, innplassering av løfteplattform for trinnfri tilgjengelighet, oppgradert ventilasjon og utskifting av vinduer. Den nye planløsningen gir tydelig sonering for arbeidsplasser, møterom og støttefunksjoner, og legger til rette for fleksibel kontordrift. Minimal fasadepåvirkning bevarer uttrykket mot omgivelsene, samtidig som byggets funksjon og standard løftes betydelig.
Har du spørsmål om prosjektet eller ønsker å vite mer om hvordan vi jobber med ombygging og bruksendring av næringsbygg? Ta kontakt med oss.
Prosjektdetaljer
- Størrelse: 458 m²
- Type: Ombygging og bruksendring (lager → kontor)
- Sted: Sætre
- Ferdigstilt: 2025 (planlagt)
- Oppdragsgiver: Verpenveien 30 AS
- Tiltak: Ny planløsning, universell utforming, nytt bjelkelag, løfteplattform, oppgradert ventilasjon, utskifting av vinduer, minimale fasadeendringer
- Prosjektet er utviklet i tråd med reguleringsplanens formål og støtter videreutvikling av næringsområdet
Se flere av våre prosjekter og oppdag hvordan vi transformerer eksisterende bygningsmasse til tidsriktige og funksjonelle arbeidsplasser.



